臭氧发生器

中国绿邦臭氧

臭氧行业新闻

臭氧消毒机的操作流程?

发布日期:2012-9-10    浏览次数:7978

为了能在各个环节都能安全的操作和维护臭氧发生器,我们从一些几个方面论述:

1. 安装/固定,调试 运行, 故障检修/维修/ 运输,储存;报废/处置

2.使用山东绿邦臭氧发生器之前相关人员必须在安装和运行设备之前详细阅读操作说明,以确保安全运行臭氧发生器(后面简称为设备)。

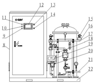
 A、电气危险 

如果设备本身或设备中的元件带有危险(如:设备带电,处于运动或转动状态等),在对这些设备或元件进行操作时,如果使用不当或误操作,或是未经允许擅 自移除保护罩或其它安全防护设备,都有可能危及人身安全或造成设备损坏。


 B、起吊装置 

对贵重设备进行操作时必须确保安全。必须使用适合于设备且符合当地安全规范的起吊装置。如果使用其它操作人员或第三方的起吊装置,必须事先征得同意。如果设备上有松动或可旋转的部件,必须 将这些部件固定在设备上。在起吊过程中如果要加速或减速时,应遵守相关许可限制。起吊装置的承重部件可能会随时间受到腐蚀。因此,在使用前应检查其承重能力 是否满足设备的需要。起吊装置下方严禁站人。

 密     C、封性能

在安装结束维修调整完成后,必须先进行密封性能测试,确定密封完好后才 能将氧气送到生产线。在此过程中需要用到的仪器(报警装置,通风装置,紧急停 机设置等)应提前准备到位。

D、来自氧气压力和臭氧的危险 

如果需要更换部件,在拆除部件之前应确保所有带压装置已卸压,并执行吹扫操作排除残余臭氧。在吹扫结束后应检测臭氧发生器出口的臭氧浓度,检测值应低于 安全允许最低值。

E、 防护罩板 

若因操作需要(调试维护维修)必须移除防护罩/,则在操作完成后应及时将防护罩/安装回原位。若需要在防护罩/被移除时进行带电操作,则必须关闭危险设备,并贴上警告标识。

F、 防火

失火会造成严重后果,严禁对含有氧气或臭氧气体的部件或管道进行焊接、打磨等操作。在执行这些操作之前必须用空气将设备中残留的氧气或臭氧充分吹扫干 净,同时还应遵守相关关于臭氧和氧气的安全规范。

G、 操作空间 

臭氧生产车间的附属空间严禁滥用,或用于存放其他物件,安全疏散路线必须在任何时候都保持畅通无阻。因为在管道或设备故障发生危险时,除非已对危险区域 采取了安全保护措施,将无法采取其他运输方式进行疏散。

 


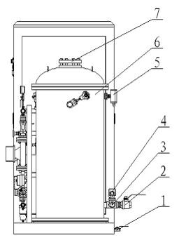
1.1/2寸排污口
2.1.5寸排水口
3.1.5寸循环水进口
4.水流检测开关
5.高压线接线盒
6.臭氧放电室
7.透视镜
8.臭氧PSU柜
9.气源指示灯
10.臭氧指示灯
11.声光报警
12.触摸屏
13.急停开关
14.启动开关
15.出水温度变送器
16.1.5寸冷却水出口
17.1寸臭氧气出口
18.臭氧尾气分解器
19.臭氧浓度检测仪
20.臭氧泄漏检测仪
21.1寸气源进气口
22.底架


-- 完 --

联系我们

地址:中国.山东省济南市历下区世纪大道13788号
电话:18769752663
传真:0531-88825540
邮箱:web@lbozone.com tra@lbozone.com sel@lbozone.com

版权信息

山东绿邦光电设备有限公司
Copyright © 2026 Lbozone All Rights
备案号:鲁ICP备05036753号